Tổng quan
| Tên dự án | Dự án Đầu tư xây dựng Khu nhà ở liên kế LK-B (06, 07, 08) |
|---|---|
| Vị trí | Thuộc Khu đô thị sinh thái Chánh Mỹ (giai đoạn 1), tiếp giáp đường Nguyễn Văn Cừ, phường Chánh Hiệp, Thành phố Hồ Chí Minh (trước đây là phường Chánh Mỹ, thành phố Thủ Dầu Một, tỉnh Bình Dương) |
| Chủ đầu tư | Tổng công ty Đầu tư phát triển nhà và đô thị (HUD) |
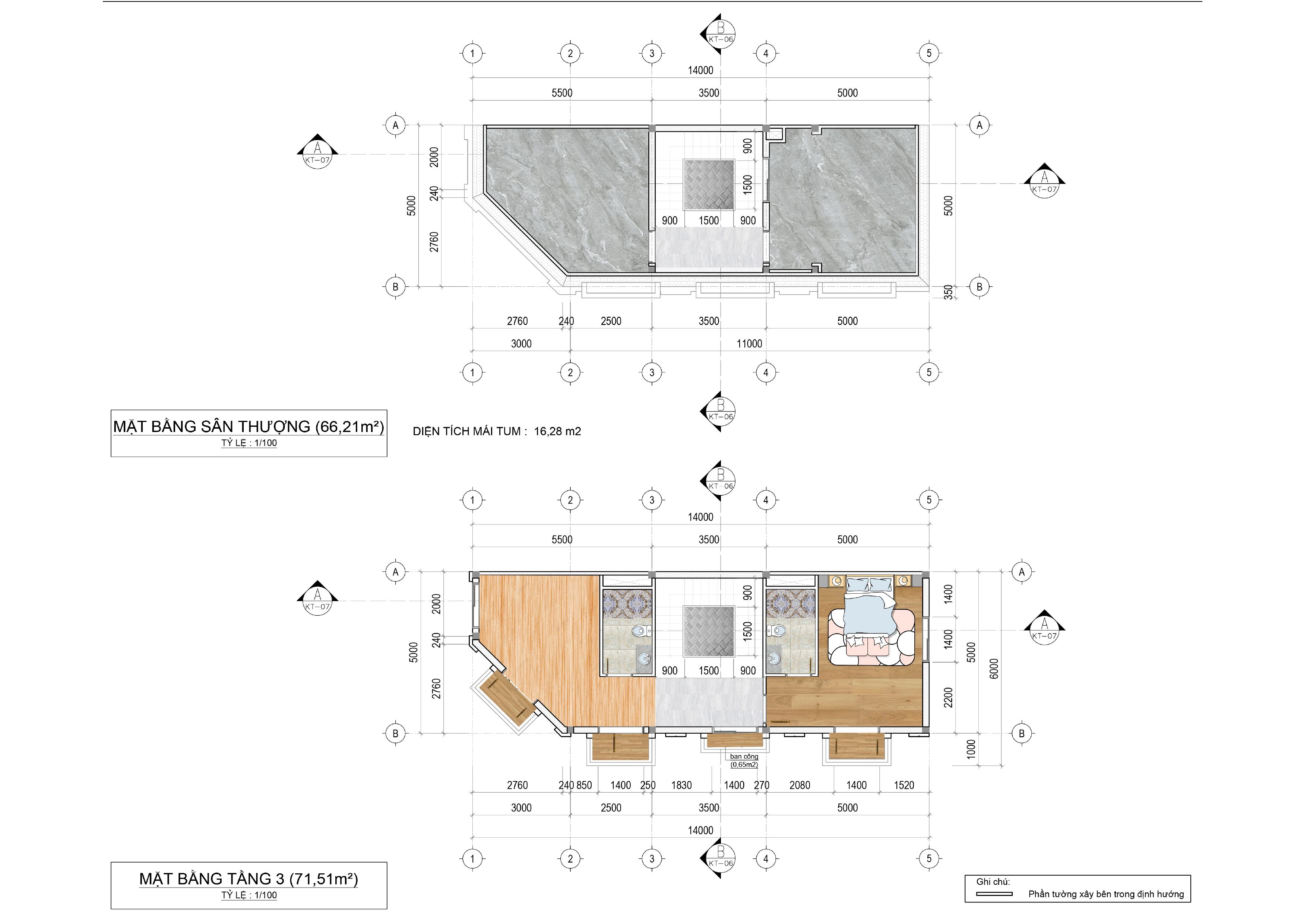
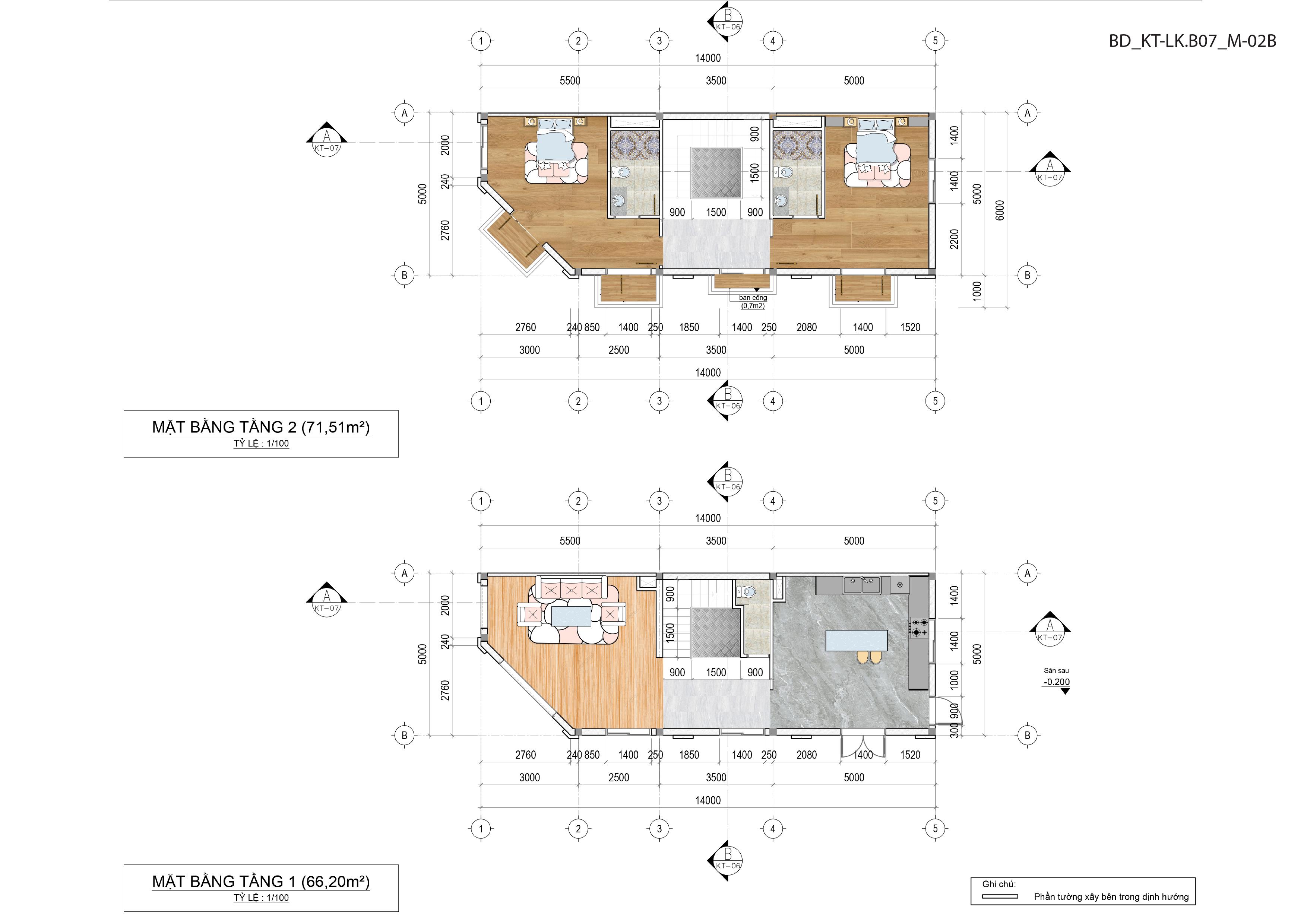
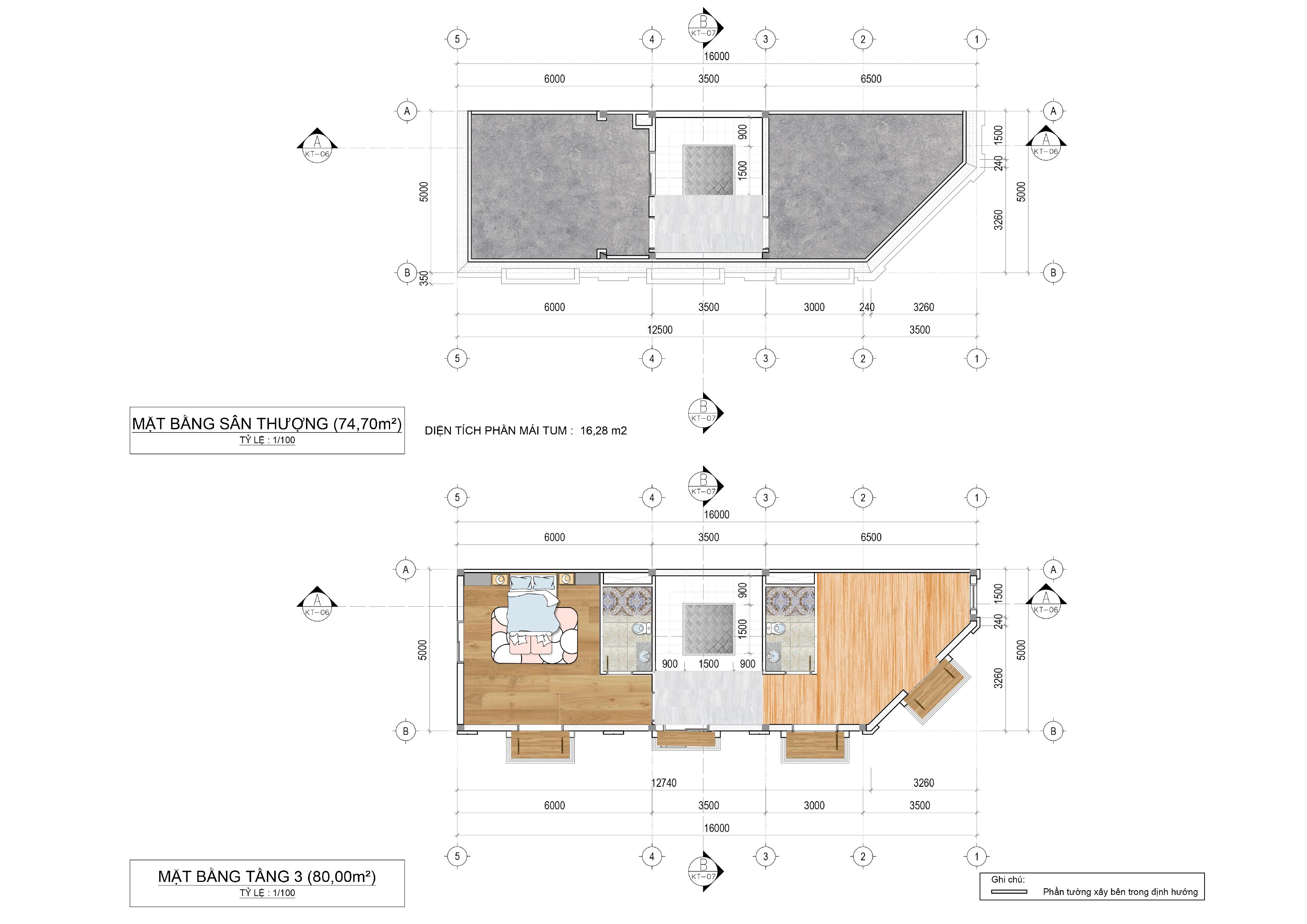
| Diện tích | 9.081,70 m2, gồm 82 căn nhà liên kế với diện tích đa dạng (100m2, 112m2, 121m2, …) |
| Loại nhà | Khu nhà ở liên kế |
| Pháp lý | Đã có giấy chứng nhận quyền sử dụng đất toàn khu |
VỊ TRÍ
Vị trí dự án Khu nhà ở liên kế LK-B(06, 07, 08) được xem là cửa ngõ giao thương huyết mạch, cư dân dễ dàng di chuyển, kết nối đến các công trình dân sinh.
5 phút di chuyển đến:
– Trường mầm non Chánh Mỹ
– UBND phường Chánh Hiệp
– Bệnh viện Đa khoa Bình Dương
10 phút di chuyển đến:
– Siêu thị Go Bình Dương
– Công viên nước Thủ Dầu 1
15 phút di chuyển đến:
– Trường Đại học Bình Dương
– Khu công nghiệp Đông Nam
– Khu du lịch Đại Nam

